LDE 型电动单梁起重机(以下简称双葫芦单梁起重机)是按 JB/T1306-2008 标准设计制造的,与 CD1、MD1 等形式的2套电动葫芦配套使用,与普通LDA型电动单梁起重机相比,具有两个两台电动葫芦,在单梁工字钢上悬挂两台电动葫芦,这两台葫芦既能单独操作又可以关联操作,可以抬吊较长工件,两个电动葫芦可以各自独立完成工件的起吊工作,又可以互相配合完成大工件的翻转,每个操纵手柄都可以独立控制共用的大车运行机构。

LDE 型电动单梁起重机(以下简称双葫芦单梁起重机)是按 JB/T1306-2008 标准设计制造的,与 CD1、MD1 等形式的2套电动葫芦配套使用,与普通LDA型电动单梁起重机相比,具有两个两台电动葫芦,在单梁工字钢上悬挂两台电动葫芦,这两台葫芦既能单独操作又可以关联操作,可以抬吊较长工件,两个电动葫芦可以各自独立完成工件的起吊工作,又可以互相配合完成大工件的翻转,每个操纵手柄都可以独立控制共用的大车运行机构。
应用范围:机械制造车间、冶金车间、石油、石化、港口、铁路、民航、电站、造纸、建材、电子等行业的车间、仓库、料场等。
优点:采用双电动葫芦悬挂在主梁上,在横向吊运的时候能够同步,吊运较长较宽的货物时能更平稳。
缺点:相对于LDA型起重机,价格略贵。
24h全国免费咨询热线
86-13929139265
LDE型电动单梁起重机产品简介:
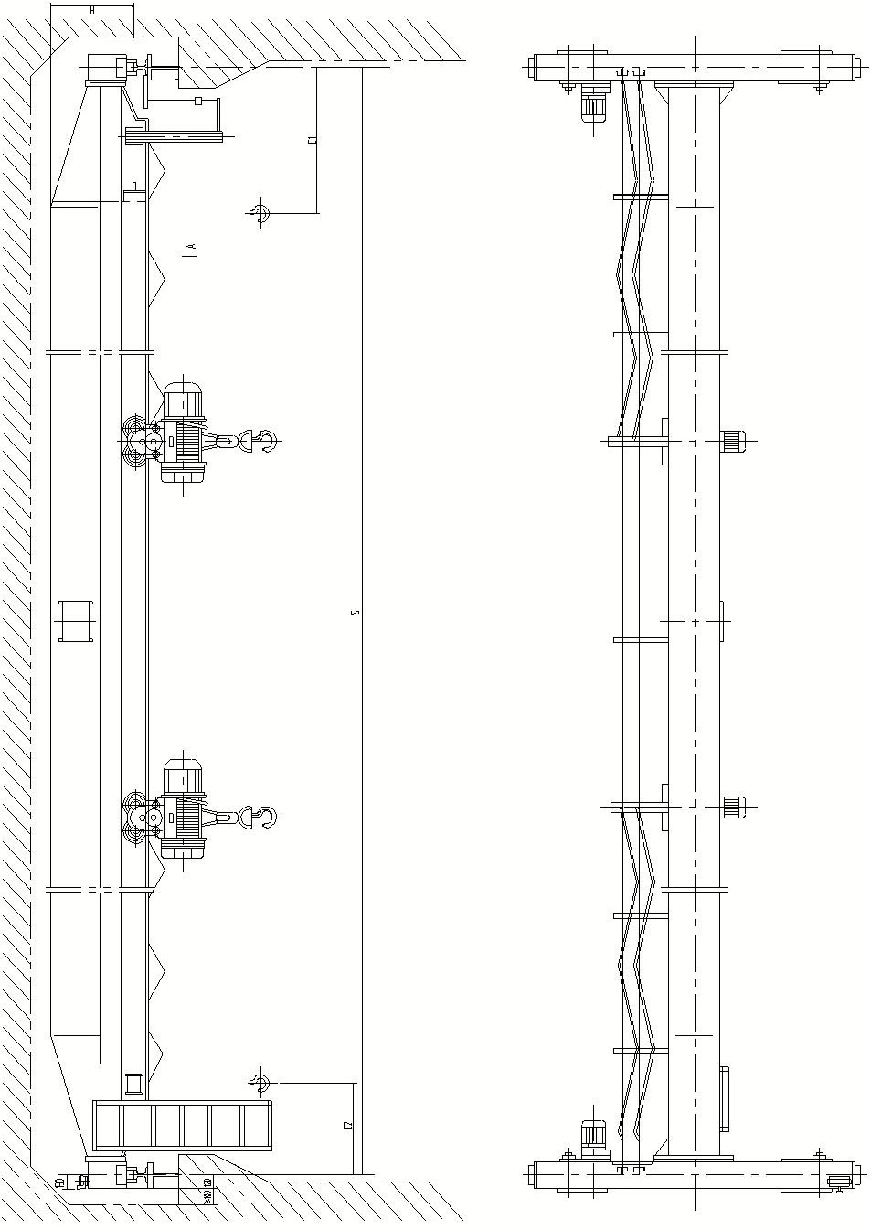
LDE型电动单梁起重机(以下简称单梁起重机)是按标准JB/T1306-94设计制造的,与CDI、MDI等形式的两套电动葫芦配套使用,成为一种有轨运行的轻小型单梁起重机,其适用起重量为1t+1t、2t+2t、3t+3t、5t+5t,适用跨度为7.5-22.5米工作环境温度在—25—+40℃范围内。为方便用户,设有地面和操纵室两种操纵形式,操纵室又设有端面及侧面开门两种形式,以供用户选择使用。本产品为一般用途起重机,多用于机械制造、装配、仓库等场所。
(1) 地面操纵
例:起重量:3t+3t,跨度:10.5m,工作级别:A4
表示方法:LD3+3-10.5 A4
(2) 操纵室操纵
例:起重量:5t+5t,跨度:16.5m,工作级别:A5
表示方法:LD5+5-16.5A5S

| 名称 | 型号 单位 | LDE5+5-D-LDE5+5-S | ||||||||||||||||||||||
| 起重量Gn | t | 5+5 | ||||||||||||||||||||||
| 操作形式 | 地面操作 | 操纵室操作 | ||||||||||||||||||||||
| 起重机运输机根 | 运行速 度V | m/mi n | 20 | 30 | 45 | 60 | 75 | |||||||||||||||||
| 电动机 | 型号 | ZDY21-4 | ZDR12-4 | |||||||||||||||||||||
| 功率 | kW | 2×1.5 | 2×1.5 | |||||||||||||||||||||
| 转速 | r/min | 1380 | 1380 | |||||||||||||||||||||
| 电动葫芦 | 型号 | CD(MD₁) | ||||||||||||||||||||||
| 起升高 度H | m | 6、9、12、18、24、30 | ||||||||||||||||||||||
| 起升速 度 V₁ | m/mi n | 8(8/0.8) | ||||||||||||||||||||||
| 运行速 度 V₁ | m/mi n | 20(30) | ||||||||||||||||||||||
| 工作级别 | A:~A | |||||||||||||||||||||||
| 电源 | 3相50Hz 380V | |||||||||||||||||||||||
| 车轮直径 | mm | 270 | ||||||||||||||||||||||
| 轨道面宽 | mm | 60~70 | ||||||||||||||||||||||
| 跨度S | m | 7.5 | 8 | 85 | 9 | 95 | 10 | 105 | 11 | 115 | 12 | 125 | 13 | 14 | 145 | 15 | 155 | 16 | 165 | 17 | 195 | 22.5 | ||
| 基本尺寸 | mm | 745 | 820 | 875 | 865 | 875 | ||||||||||||||||||
| mm | 910 | 1010 | 1110 | 1060 | 1210 | |||||||||||||||||||
| mm | 1470 | 1495 | 1540 | 1600 | 1640 | |||||||||||||||||||
| mm | 1230 | |||||||||||||||||||||||
| mm | 1291 | |||||||||||||||||||||||
| W | mm | 2000 | 2500 | 3000 | ||||||||||||||||||||
| B | mm | 2500 | 3000 | 3500 | ||||||||||||||||||||










