本机适用于码头、货场等露天作业的装卸搬运场所,特别适用于吊运细长形物件,固广泛应用于木料堆场、桩管厂等。该机作业空间大,便于运输、安装。

本机适用于码头、货场等露天作业的装卸搬运场所,特别适用于吊运细长形物件,固广泛应用于木料堆场、桩管厂等。该机作业空间大,便于运输、安装。
优点:视野开阔、操作灵活、效率高、价格适中。
缺点:桥架为单主梁结构,起重机运行平稳性相对较差,晃动大,抗风性能差。
24h全国免费咨询热线
86-13929139265
L型20t/5t单主梁吊钩门式起重机主要技术参数及尺寸
一、简介:
1.L型20t/5t单主梁吊钩门式起重机适用于露天货场、铁路沿线进行一般的装卸吊装及起重搬运工作。
2. L型20t/5tt龙门吊因结构特点,在起升高度一定的情况下,整机的高度有所降低,节约了成本。
3 .L型20t/5tt龙门吊起重机自重轻,轮压小,性能可靠。
Introduction:
1. L Type Single Girder Gantry Crane is opplid to general materials handling service in outdoor freight yard or along
railway lines,such as loading, unloading, lifting and transferring work.
2. Given certain lift height,theoverrall height ofL Type Gantry Crane is reduced out of its structural features. As a
result, the cost is lowered.
3. L Type Gantry Crane is featured by Light deadweightjight wheel load and reliable performance.
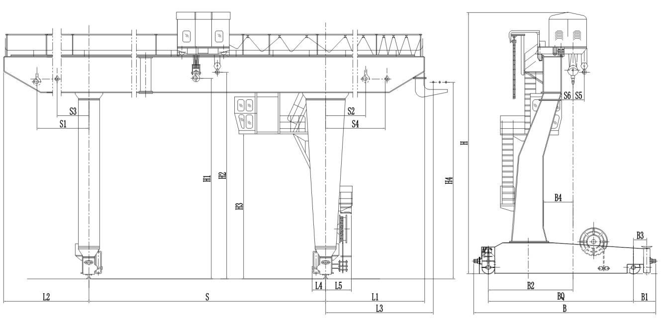
二、设计图纸

三、主要技术规格表:
起重量 Cap | 主钩 Main | t | 20 | |||||
副钩 Auxiliary | 5 | |||||||
跨度 Span | m | 18 | 22 | 26 | 30 | 35 | ||
起升高度 Lifting Height | 主钩 Main | 10 | 11 | |||||
副钩 Auxiliary | 10.5 | 11.5 | ||||||
工作制度Duty | A5 | |||||||
速度 Speed | 主 钩Main | m/min | 7.1 | |||||
副 钩 Auxiliary | 9.2 | |||||||
小车运行 Crab travelling | 39.3 | |||||||
大车运彳丁 Trolley travelling | 40.1 | 47.1 | ||||||
极限尺寸 Limt dimension | L1 | mm | 7200 | 9200 | ||||
L2 | 7900 | 10400 | ||||||
L | 1483 | |||||||
C1 | 5000 | 7000 | ||||||
C2 | 5000 | 7000 | ||||||
主要尺寸 Main dimenstion | H | 13860 | 14860 | |||||
H1 | 10 | 11 | ||||||
H2 | 0 | |||||||
H3 | 660 | 762 | ||||||
B | 9250 | 10000 | ||||||
W | 7500 | 8000 | ||||||
K | 1250 | 1350 | 1550 | |||||
L3 | 65Q | |||||||
最 大轮压 Max.Wheel Loading | kN | 340 | 346 | -362 | 419 | 432 | ||
电机总功率Total Power | kw | 67.3 | 78.3 | |||||
荐用钢轨 Crane Rail Recommended | 43kg/m | |||||||
电 源 Power Supply | 三相交流 3-Phase A.C.50HZ 380V | |||||||









