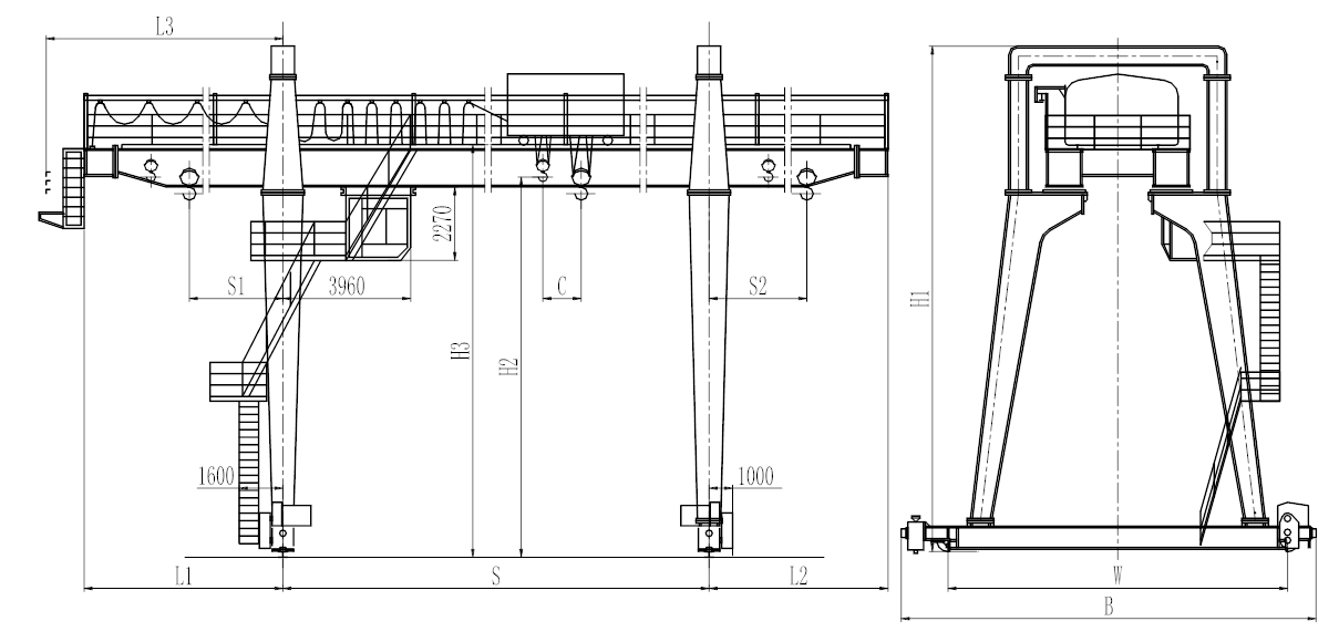
MG型通用10t门式起重机属双主梁通用门式起重机,也称A型10t双梁门吊,由桥架、大车运行机构、小车、电气设备等部分构成。本10t起重机是按照GB/T14406-1993《通用门式起重机》设计制造,起重量10t,工作环境为-20~+40℃,工作级别A5、A6两种。

MG型通用10t门式起重机属双主梁通用门式起重机,也称A型10t双梁门吊,由桥架、大车运行机构、小车、电气设备等部分构成。本10t起重机是按照GB/T14406-1993《通用门式起重机》设计制造,起重量10t,工作环境为-20~+40℃,工作级别A5、A6两种。
24h全国免费咨询热线
86-13929139265












