蓝狮在线

您当前的位置 : 蓝狮在线 > 产品中心 > 更多起重设备
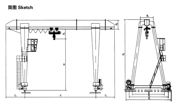
3t单梁门式起重机主要性能及技术参数

MH型3t单梁门式起重机是中小型可带悬臂的简易3t门式起重机,3t电动葫芦采用CDI、MDI等形式,主梁是U型槽板与工字钢焊接而成的组合梁,大车运行机构采用三合一驱动装置。其适用起重量为3t,适用跨度为7.5-30米,工作环境温度在-25—+40℃范围内。其结构简单、安装、使用、维修方便,多用于工厂、货场、码头、水电站等使用频度低或额定起重量起吊次数少的场所。

  • 适用起重量3t
  • 适用跨度7.5m-30m

24h全国免费咨询热线
86-13929139265

创造客户价值 助力客户成功-蓝狮在线-蓝狮注册在线 - 欧亿6蓝狮网官方
广东蓝狮在线起重设备凭借良好的声誉,优异的品质及完善的服务赢得世界点赞,在国内外众多企业大放异彩,在广东周边地区享有超高的荣誉,屹立在美丽的佛山,展望在世界的起重机行业舞台。
var _hmt = _hmt || []; (function() { var hm = document.createElement("script"); hm.src = "https://hm.baidu.com/hm.js?25a8b6ddd6dc7b9a90aeb1f51e218aa6"; var s = document.getElementsByTagName("script")[0]; s.parentNode.insertBefore(hm, s); })(); 蓝狮娱乐-「蓝狮在线,专注成就未来」 巅峰国际官网-追求健康,你我一起成长 巅峰国际-科技赋能场景,让娱乐更有趣。 巅峰国际-梦想照进现实,努力成就未来! 巅峰国际官网-为热爱加冕,与强者同行