
24h全国免费咨询热线
86-13929139265
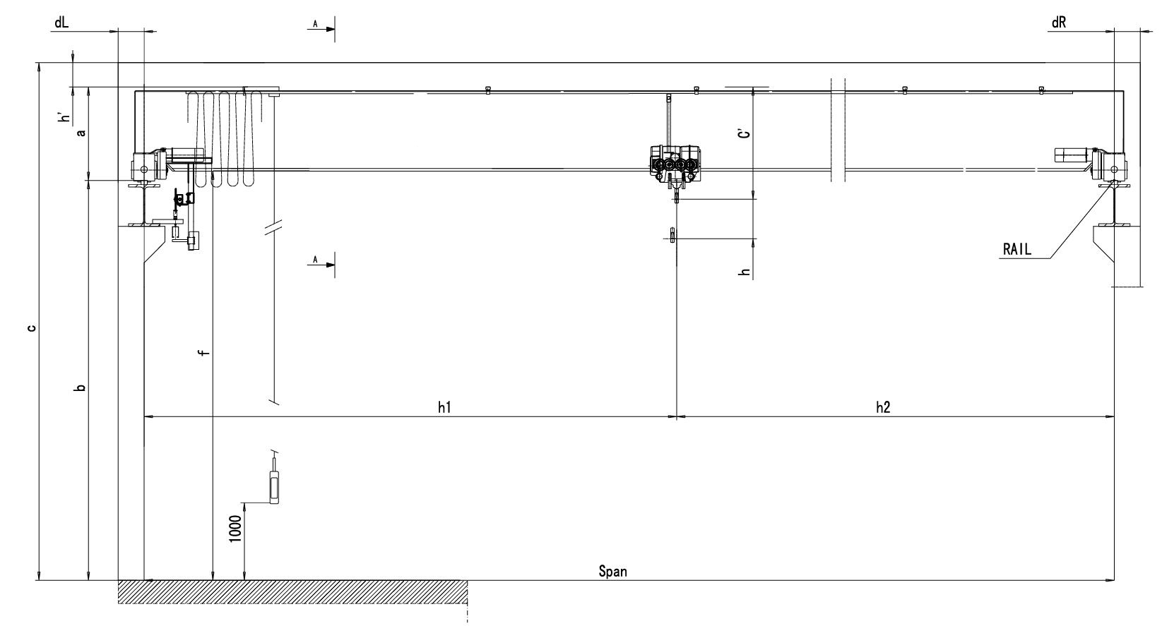
欧式单梁桥式起重机是是基于欧洲轻量化和模块化设计理念以及先进生产制造工艺,在主梁上悬挂电动葫芦起升机构,可左右、上下、前后实现物料物体在立体空间搬运。该产品技术先进,设计按照国际标准:DIN(德国)、FEM(欧洲)、ISO(国际),具有刚性强、自重轻、结构设计出众等优点,能有效地节约厂房空间和投资成本,行走结构特点独特,是您最佳的选择。
European single girder overhead crane is based on the European lightweight and modular design concept and advanced manufacturing technology, hanging on the main beam electric hoist lifting mechanism, can be left and right, up and down, front and back to achieve material objects in three-dimensional space transport.
This product is advanced in technology, designed in accordance with international standards: DIN (Germany), FEM (Europe), ISO (international), with strong rigidity, light weight, outstanding structural design and other advantages, can effectively save workshop space and investment cost, walking structure features unique, is your best choice.

起重量 / 工作级别 SWL/Class 欧式单梁起重机1t / A5
跨度 | Span | m | 7.5 | 10.5 | 13.5 | 16.5 | 19.5 | 22.5 | 25.5 | 28.5 | ||
基本参数Basic Data | 整机自重 | Crane Weight |
t | 1.22 | 1.52 | 1.93 | 2.8 | 3.21 | 4.62 | 5.21 | 7.03 | |
小车自重 | Trolley Weight | 0.2 | 0.2 | 0.2 | 0.2 | 0.2 | 0.2 | 0.2 | 0.2 | |||
最大轮压 | Max. Wheel Load |
kN | 8.7 | 9.9 | 11.2 | 13.4 | 14.4 | 18.0 | 19.5 | 24.0 | ||
最小轮压 | Min. Wheel Load | 2.5 | 3.0 | 3.9 | 5.9 | 6.9 | 10.2 | 11.6 | 16.0 | |||
大车车轮数 | Crane Wheel Q'ty | PCS | 4 | 4 | 4 | 4 | 4 | 4 | 4 | 4 | ||
推荐轨道 | Crane Rail | P22 | P22 | P22 | P22 | P22 | P22 | P22 | P22 | |||
速度Speed | 起升速度 | Lifting Speed |
m/min | 10/1.67 | ||||||||
小车速度 | Trolley Speed | 0 - 20 | ||||||||||
大车速度 | Bridge Speed | 0 - 32 | ||||||||||
电机功率Motor Power | 起升电机 | Lifting Motor |
kW | 1.8/0.25 | 1.8/0.25 | 1.8/0.25 | 1.8/0.25 | 1.8/0.25 | 1.8/0.25 | 1.8/0.25 | 1.8/0.25 | |
小车电机 | Trolley Motor | 0.3×1 | 0.3×1 | 0.3×1 | 0.3×1 | 0.3×1 | 0.3×1 | 0.3×1 | 0.3×1 | |||
大车电机 | Bridge Motor | 0.3×2 | 0.3×2 | 0.3×2 | 0.3×2 | 0.3×2 | 0.37×2 | 0.37×2 | 0.45×2 | |||
整机功率 | Crane Power | 2.7 | 2.7 | 2.7 | 2.7 | 2.7 | 2.84 | 2.84 | 3.0 | |||







